01/2018 Präzision beim Hausbau
BAUEN
Wie vom Himmel gefallen
Heidenhäuser heissen die langgestreckten, traufständigen Bauernhäuser, die so typisch sind für Appenzell Ausserrhoden. Verstreut stehen sie in der hügeligen Landschaft und wirken zuweilen, als seien sie geradewegs vom Himmel gefallen. Ganz so schnell und einfach war es für die Appenzeller Holzbau GmbH allerdings nicht, das Haus zu realisieren. Zwei Jahre intensiver Arbeit stecken in dem eleganten Bauwerk bäuerlicher Herkunft.
Text Dorothee Bauland | Fotos André Brugger, Appenzeller Holzbau
Lediglich ein schmaler Wirtschaftsweg – zunächst noch asphaltiert, aber bald nur geschottert – führt von Gais (AR) aufs Stössi. Kurz bevor sich der Pfad scheinbar im Himmel verliert, tatsächlich aber nach der Kuppe in der Wiese endet, erhebt sich das Heidenhaus von Bauherr Guido Koller. Der Garagenplatz am Wegesrand bietet noch eine letzte Möglichkeit, das Auto zu parkieren. Dann erfolgt der kurze Anstieg zum Haus. Der langgezogene Holzbau erstreckt sich über 25 Meter in west-östliche Richtung. Zunächst fällt der Blick bei der Ankunft auf den Stallteil mit seiner acht Meter breiten, vertikal verbretterten Westfassade. Davor lädt ein kleiner Sitzplatz ein, die Abendsonne zu geniessen. Nur bei genauem Hinsehen ist hinter der luftigen Lattung im leicht zurückgesetzten Obergeschoss der vollverglaste Giebel zu erkennen. Auf der Längsseite des Hauses, gerade dort, wo der Stallteil mit der vertikalen Holzverbretterung endet und der Wohntrakt mit seiner Holzschindelfassade beginnt, befindet sich der Eingang. Von zwei Seiten führt mit je acht Stufen ein eigens für dieses Haus entworfenes Treppenbauwerk zur Haustür. Die Eleganz und Präzision der Treppenanlage mit ihrem filigranen Edelstahlgeländer und den auf Gehrung geschnittenen Leisten über einem unsichtbaren Betonkern lässt – wie das Panoramafenster neben der Haustür – schon erahnen, dass sich das Haus auch in seinem Inneren aussergewöhnlich präsentiert.
Ersatzneubau mit gleicher Kubatur
Remo Koller, Projektleiter bei der Appenzeller Holzbau GmbH, hat das Bijou gebaut. Zwei Jahre lang drehte sich für den 32-jährigen Zimmermann, Polier und angehenden Architekten fast jeder Arbeitstag um das Heidenhaus von Guido Koller. Als Bauleiter zeichnete Remo Koller, der mit dem Bauherrn weder verwandt noch verschwägert ist – der Name ist im Appenzell häufig anzutreffen –, auch für das Zusammenspiel der Gewerke verantwortlich. Bis zur Baueingabereife wurde das Projekt von Architektin Rahel Lämmler betreut, ab Baueingabe von Remo Koller. Die Architektin aus Speicher (AR) hatte sich in einem kleinen Wettbewerb mit insgesamt drei Einreichungen durchgesetzt. Während ihre Mitbewerber einen Umbau des Bestandsgebäudes favorisierten, überzeugte sie den Bauherrn mit ihren Plänen für einen Ersatzneubau. Der Clou ihres Entwurfs: Sie kehrte die Nutzung des Gebäudes um 180 Grad. Damit liegt der Stallteil, der vom Bauherrn im Erdgeschoss als Werkstatt und Waschküche genutzt wird und im Obergeschoss sein Büro beherbergt, nun im Westen auf der Zufahrtsseite. Der Wohntrakt wendet sich neu nach Osten und öffnet mit einem Panoramafenster den Blick über das Rheintal zu den österreichischen Alpen. Möglich wurde diese Kehrtwende, weil der Bestandsbau weder historisch noch architektonisch von Bedeutsamkeit war. Die kantonale Denkmalpflege gab schon bald grünes Licht für den Ersatzneubau; Kubatur und Baustil sollten allerdings übernommen und die Lage durfte nur minim verschoben werden. Die Vorgaben der Denkmal- und Raumpflege waren durchaus auch im Sinne des Bauherrn. Das vormals landwirtschaftlich genutzte Gebäude hatte er vor allem deshalb erworben, weil er sich damit seinen Traum vom ländlichen Wohnen in regionaltypischer Bauweise erfüllen wollte. Wobei der Traum auch die Ansprüche an eine puristische und zeitgemässe Architektur beinhaltete.
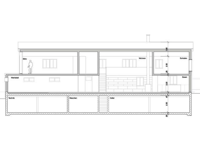
Frei bis unters Dach
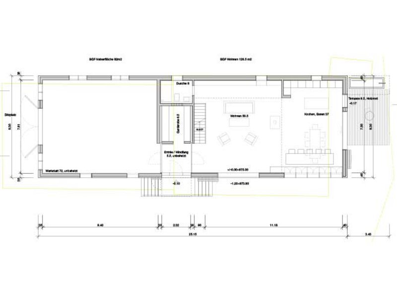
Wenn sich die Haustür öffnet, ist dem Bauherrn die Überraschung seiner Gäste sicher. Was sich offenbart, ist alles andere als das typisch kleinteilige Innenleben eines Bauernhauses. In seinem Wohnhaus gibt es weder ein Entrée, noch ein separates Treppenhaus. Keine Trennwände und Zwischendecken, die das grosszügige Raumgefühl stören würden. Stattdessen verbirgt sich hinter der traditionellen Schindelfassade ein Bijou mit Loftcharakter. Ein einziger grosszügiger Raum, der zum Wohnen, Kochen und Essen genutzt wird, öffnet sich teils bis unter den Firstbalken. Die Treppe führt offen auf die Galerie im Dachgeschoss. Von dort werden das Büro und das Bad über der Werkstatt im Stalltrakt erschlossen, wie auch auf der anderen Hausseite der Schlafraum, der lediglich Küche und Essplatz überdeckt. Im Erdgeschoss versteckt sich hinter der Treppe ausserdem noch ein kleines Gästebad. Das Innere des Hauses besteht wie die Konstruktion und die Aussenhaut durch und durch aus Holz. Doch während aussen unbehandeltes Lärchenholz der Witterung trotzt, hat der Bauherr für das Innenkleid astreine, unbehandelte Weisstanne gewählt. Die Böden sind mit massiven, sägerohen Eichenholzdielen belegt, die geschliffen und geölt wurden. Lediglich das Untergeschoss des Gebäudes ist betoniert. Zugänglich ist der Kaltkeller, der sich unter dem gesamten Gebäude erstreckt, über eine Treppe unter einer Bodenklappe im Stalltrakt. Genutzt wird er für gelegentliche Ausstellungen, die der kunstinteressierte Bauherr organisiert.
Innenausbau in Perfektion
Als Kunstwerk ist auch das Bauwerk konzipiert. Der Innenausbau ähnelt in Präzision und Eleganz einem Möbelstück aus der Kunstschreinerei. Und tatsächlich war ein Zimmermann der Appenzeller Holzbau ein ganzes Jahr lang mit dem Innenausbau beschäftigt. «Die Vorfabrikation des Holzbaus in unserer Werkstatt in Appenzell hat rund zehn Wochen in Anspruch genommen», erläutert Projektleiter Remo Koller den Bauablauf. «Unsere Infrastruktur ist eher klein.» Die Aufrichte erfolgte dann durch sieben Mitarbeiter in einer Woche. Doch bis zum Bezug des Gebäudes verging noch ein Jahr. «Mit Ueli Inauen für die Zimmererarbeiten und Stefan Signer für die Schreinerarbeiten haben die immer gleichen zwei Person am Projekt gearbeitet», so Remo Koller. «Bau und Innenausbau verlangten extrem viel handwerkliches Geschick.» Beispielsweise wurde der Einbauschrank unter der Treppe zunächst vollständig mit Weisstanne-Bodenriemen (rift/halbrift) verkleidet. Dann schnitt Schreiner Stefan Signer die Schubladenfronten heraus, nummerierte sie, schliff sie auf 5 Millimeter Furnierstärke und leimte sie auf 12-Millimeter-Birkensperrholz. Um ein Verziehen zu verhindern, sind die Sperrholzplatten auch rückwärtig mit 5 Millimeter starkem Furnier belegt. Die Fronten wurden dann auf die Schubladen angebracht und an den exakt gleichen Stellen wieder eingesetzt. Nach dem gleichen Vorgehen sind auch die Türen gestaltet. So läuft die Holzmaserung des Täfers störungsfrei durch den ganzen Raum. Insgesamt wurden für den Innenausbau 640 Quadratmeter der Weisstannen-Bodenriemen als Täfer montiert und 70 Schubladen nach diesem Vorgehen integriert. Sämtliche Ecken – ob an den Schubladen, an der Treppe oder am Galeriegeländer – sind als Gehrung ausgeführt. Dafür kamen 2500 Lamello-Tenso-Verbinder zum Einsatz. Nicht minder aufwändig gestaltete sich für Remo Koller, Ueli Inauen und Stefan Signer der Einbau der Fenster. Der Bauherr wollte neben den regionaltypischen Reihenfenstern auch zwei geschosshohe Panoramafenster. Eines auf der Südseite neben dem Eingang, um den Wohnbereich zu belichten und einen Blick in die sanfte Hügellandschaft des Appenzell zu gewähren. Ein weiteres auf der Ostseite, mit Weitsicht auf das Rheintal und die österreichischen Alpen. Was er jedoch nicht wollte, waren sichtbare Fensterrahmen. Aber auch diese Herausforderung meisterte der Projektleiter mit seinem Team. Die Fensterrahmen mit Festverglasungen im Pfosten-Riegel-System von Raico verschwinden nun optisch im Wand- und Bodenaufbau, so dass nichts mehr die Sicht des Bauherrn trüben kann. Remo Koller: «Man sieht nichts mehr vom Rahmen. Die Weisstannenverkleidung geht bis zur Gummidichtung. Damit haben wir die heutigen Möglichkeiten absolut ausgereizt.» Auch bei den Reihenfenstern sind keine Rahmen sichtbar, lediglich die Flügel. Sie wurden als Holz-Metall-Fenster, Typ Sirius V, von der Blumer Techno Fenster AG aus Waldstatt (AR) angefertigt. Die Giebelverglasung an der Westseite plante und baute Appenzeller Holzbau. Das Besondere daran: Die vorgehängte Lattenkonstruktion lässt sich zum Putzen schwenken. Gefertigt wurden die Schwenktore von der Willi Metallbau AG aus Gais. Gegen den Aufwand, den die Appenzeller Holzbau mit den Schubladen und Fenstern getrieben hat, mutetet der vom Bauherrn gewünschte Verzicht auf Sockelleisten fast als Kleinigkeit an: Er forderte von den Holzbauern lediglich eine hochpräzise Verlegung der Bodendielen.
Konstruktive Kraftableitung
Das Tragwerk des Heidenhauses stellte die Zimmerleute vor eine konstruktive Herausforderung. Durch den Rücksprung des Dachgeschosses von knapp zwei Metern und die Vollverglasung im Giebel kann die westliche Giebelwand die Windkraft nicht entsprechend aufnehmen. Die Lasten werden nun über den Firstträger sowie über einen Querbalken und einen Unterzug unter der Werkstattdecke in die zurückliegende Wandscheibe zwischen Haus- und Stalltrakt abgeleitet. Ansonsten gibt es im Erdgeschoss nur noch eine kleine Wandscheibe von gut einem Meter zwischen Wandregal und Küche, welche die Kraft der innenliegenden Giebelscheibe des Schlafraums aufnimmt. Die Decken im Stalltrakt und im Koch-Essbereich sind über die acht Meter der Hausbreite frei gespannt. Der 25 Meter lange Firstträger aus Weisstanne ist in der Mitte durch einen Gerberstoss verbunden, Eisenplatten nehmen hier die Druckkräfte auf. Die Holzständer der Wandelemente haben einen Querschnitt von 160 auf 80 Millimeter und sind zum Innenraum mit einer 19-Millimeter-Dreischichtplatte als Konstruktionsplatte versehen. Aussen ist eine Querlattung angebracht. Auf der 100 Millimeter dicken Isolierung aus Holzfaserdämmstoff liegt Windpapier. «Wir arbeiten vorzugsweise mit HolzFlex-Holzwolle und bei Brandschutzbedarf mit Steinwolle», so Projektleiter Remo Koller. Dass Holzfaser-Dämmstoffe nicht mit dem Messer bearbeitet werden können, sondern eine Maschine erfordern, sieht er als Vor- und nicht als Nachteil. «Daraus resultieren immer saubere Schnitte.» Auf den Baustellen der Appenzeller Holzbau steht dafür eigens eine mobile Bandsäge bereit. «Qualität ist die beste Möglichkeit, sich von den zahlreichen Mitbewerbern im Appenzell abzuheben», betont Firmenchef Peter Heierli: «Alleine in Appenzell Innerrhoden gibt es 35 holzverarbeitende Betriebe – da überlebt man nur mit Qualität!» Hochwertig am Bauprojekt auf dem Stössi ist auch der Aufbau von Wänden, Boden und Dach. Weil Bauherr Guido Koller keine OSB-Platten in seinem Wohnhaus wollte, wurden für sämtliche Konstruktionsplatten 27 Millimeter starke Dreischichtplatten gewählt. Für die 158 Quadratmeter Bodenelemente sind BSH-Ständer (100 auf 220 Millimeter) mit einem Achsabstand von 400 Millimetern verbaut, mit Holzfaserdämmstoff gefüllt und mit Dreischichtplatten gedeckt. Darauf aufgebaut ist der Boden mit Trittschalldämmung, Anhydritestrich und abschliessendem Eichendielenparkett. Die 211 Quadratmeter Dachelemente bestehen aus Konterlattung, Unterdach, Weichfaserplatte (52–60 mm), Sparren (100 × 200 mm, ausisoliert) und Dreischichtplatten. Im Innenraum wurden anschliessend die Dach- und Wandelemente mit der astfreien Weisstanne verkleidet, im Aussenbreich sind alle Fensterfutter, Dacheinfassungen, Untersichten und Fassaden aus Lärchenholz gefertigt. Die vertikale Fassade ist ohne sichtbare Schrauben als Einhängesystem realisiert. Die Schindelfassade montierte die Züst Bedachungen AG aus Teufen (AR).
Anspruchsvoller Bauherr
Zweifelsohne ist Guido Koller ein anspruchsvoller Bauherr. Er hat sich im Vorfeld viele Gedanken gemacht, wie sein Haus aussehen soll, und das Projekt in der Umsetzung eng begleitet. «Ich wollte mein Haus verstehen,» begründete er sein Engagement für das Bauprojekt. Sogar die Kostenkontrolle übernahm der Bauherr, der in Gais ein Treuhandbüro führt. Von Beginn an stand für ihn fest, dass sein Haus ein Holzbau sein würde, der sich in die Landschaft einfügt. Damit einher geht der bewusste Verzicht auf eine geteerte Zufahrtstrasse und auf einen Garten. Lediglich ein kleiner Schotterweg erschliesst das von Wiesen umschlossene Gebäude. «Mein Haus ist vom Himmel gefallen, geradewegs in die Landschaft hinein,» beschreibt Guido Koller seine Intention. Auch die Energieversorgung war für ihn ein relevantes Thema. Eine eigene Quelle, Wärmegewinnung durch eine Erdsonde und die Photovoltaikanlage auf dem Dach des Hauses und der kleinen Garage am Wegesrand machen den Bau fast autark. Für Bauleiter Remo Koller waren die enge Zusammenarbeit wie auch die lange Projektdauer aussergewöhnlich. Vom Baubeginn 2015 bis zum Einzug des Bauherrn 2017 vergingen immerhin zwei Jahre. «Auf der Suche nach den perfekten Werkstoffen sind wir spontan auch mal bis nach Österreich zu einem speziellen Ofenbauer gefahren,» erinnert sich der Zimmermann. Beide sind sich einig: «Die Zusammenarbeit hat super funktioniert und Spass gemacht!» Guido Koller ergänzt: «Jetzt habe ich fast Langeweile.»
Heidenhaus
Projekt: Einfamilienhaus, Gais (AR)
Bauzeit: 2015–2017
Bauherr: Guido Koller, Gais
Architektin: Rahel Lämmler,
Speicher (AR)
Bauingenieur: J. Siegfried Holzbauplanung, Freidorf (TG)
Holzbau: Appenzeller Holzbau GmbH, Appenzell
Bauleitung: Remo Koller, Appenzeller Holzbau GmbH
Grundfläche: 25 m × 8 m
Gebäudevolumen: 1795 m3
Aussenwände: 241 m2
Dachelemente: 211 m2
Bodenelemente: 158 m2
Konstruktionsholz: 43 m3
Dreischichtplatte für konstruktive Zwecke: 1327 m2
Täfer Weisstanne: 640 m2
Fassadenbretter Lärche: 116 m2
Fassadenschindeln Lärche: 141 m2
Appenzeller Holzbau
2005 hatte Peter Heierli den Wunsch, sich selbständig zu machen. Bald fand der Zimmermann-Polier eine Werkhalle in Appenzell, die er mieten konnte. Gemeinsam mit Thomas Inauen, Zimmermann-Vorarbeiter, gründete er 2006 die Appenzeller Holzbau GmbH. Sie starteten ihr Unternehmen mit vier Mitarbeitern. Mittlerweile beschäftigen der 43-jährige Heierli und der 53-jährige Inauen 23 Mitarbeitende in Zimmerei und Schreinerei, davon vier bis fünf Lernende. Zum Team zählt unter anderem Projektleiter Remo Koller. Der 32-jährige Zimmermann-Polier leitete das Projekt «Heidenhaus» und absolviert derzeit ein berufsbegleitendes Architekturstudium in Chur. a-holzbau.ch







