07/2025 Teamwork im Quadrat
BAUEN
Teamwork im Quadrat
Im letzten Jahr wurde in Flums (SG) ein Vierfachkindergarten fertiggestellt. Der kompakte Holzbau umfasst vier identisch aufgebaute Gruppenbereiche und bietet nicht nur Platz zum Spielen, Werken und Toben, sondern vor allem auch eines: Raum zum Wohlfühlen.
Text Susanne Lieber Bilder Katia Rudnicki (kalena.ch), Claudia Reinert Pläne Eberle & Freuler Architekten GmbH
Der Vierfachkindergarten in Flums zeigt einmal mehr, was die Holzbaubranche in der Schweiz so besonders macht: kollegiales Miteinander. Kann ein Betrieb ein Projekt nicht alleine stemmen, wird zusammengespannt. So auch hier. In diesem Fall bildeten die Junginger Holzbau AG aus Walenstadt (SG) und die HebHolz AG aus Flums Hochwiese (SG) zusammen eine Arbeitsgemeinschaft, denn weder der eine noch der andere Betrieb hätte den Auftrag im Alleingang bewältigen können. Federführend bei der Planung und beim Bau war die Junginger Holzbau AG, der Abbund hingegen lag im Verantwortungsbereich der HebHolz AG; die Aufrichte erfolgte gemeinsam. «Den Zuschlag bei der öffentlichen Ausschreibung hat unser Betrieb bekommen, aber zur Unterstützung haben wir die Hebholz AG mit ins Boot geholt», erklärt Peter Junginger und ergänzt schmunzelnd: «So kam glücklicherweise auch ein einheimischer Betrieb zum Zug – wir kommen ja aus der Gemeinde nebenan.»
Bereits zuvor hatten die beiden Betriebe beim Bau von zwei Mehrfamilienhäusern erfolgreich zusammengearbeitet. Man kennt sich und schätzt einander. Insgesamt bestand das gemischte Team für den Kindergartenbau aus zehn Zimmerleuten. Summa summarum belief sich der Arbeitsaufwand auf rund 1300 Stunden für die Vorfertigung, 350 Stunden für die Aufrichte, 500 Stunden für den Innenausbau und 1200 Stunden für den Fassadenbau. Mit der Aufrichte konnte erst Ende Februar begonnen werden. Ein eher suboptimaler Zeitpunkt, möchte man meinen: Die winterlichen Wetterverhältnisse zwangen bereits nach Errichten des ersten Geschosses zu einer zweitägigen Pause, ehe die Bauarbeiten fortgesetzt werden konnten. Und aufgrund der kurzen Tage musste ein Grossteil der Arbeit im Flutlicht erfolgen. Nichtsdestotrotz: Nach fünf Tagen stand der Kindergarten.
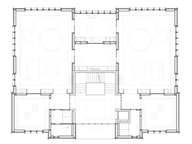
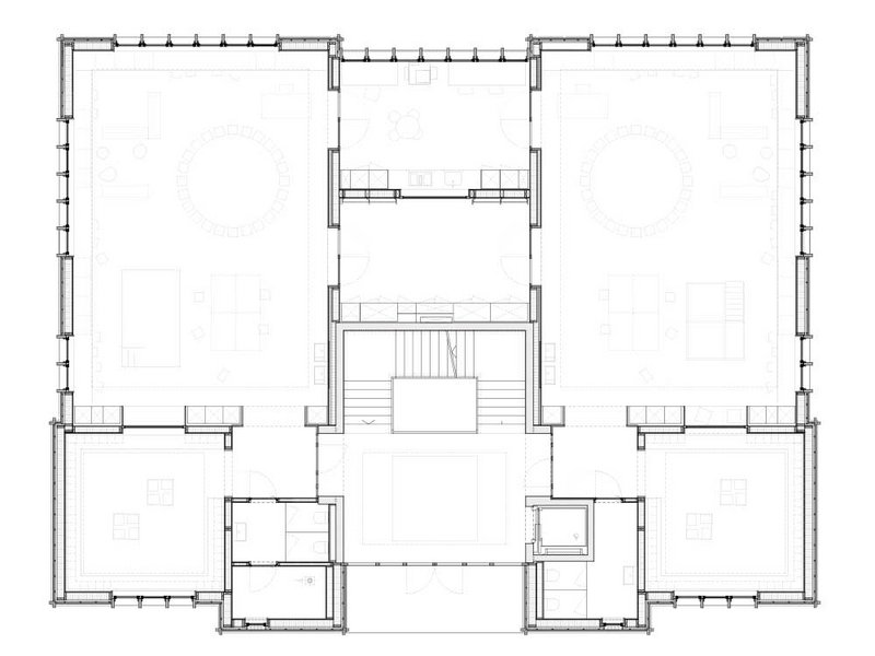
Vier Gruppen, vier Räume, ein Grundriss
Entworfen wurde der Kindergartenneubau vom Flumser Büro Eberle & Freuler Architekten, das den 2023 ausgeschriebenen Wettbewerb für sich entscheiden konnte. Dass es sich beim Gebäude explizit um einen Holzbau handeln sollte, ging dabei aus der Aufgabenstellung hervor. Der symmetrisch aufgebaute und nur teilunterkellerte Bau wird von Nordwesten her erschlossen. Vom Eingangsbereich gelangt man links und rechts jeweils in einen hellen Gruppenraum mit vorgelagertem Garderobenbereich und Toiletten. Zwischen den Gruppenräumen befinden sich zudem ein Arbeitsraum mit Küche für das Betreuungspersonal sowie ein von beiden Kindergartengruppen zusätzlich nutzbarer Raum. Über das Treppenhaus – es wurde in Massivbauweise erstellt – gelangt man ins Obergeschoss mit dem dritten und vierten Gruppenraum. Der Grundriss ist hierbei gleich aufgebaut wie im Erdgeschoss. Die architektonische Ausgangslage ist demnach bei allen vier Kindergartengruppen dieselbe, und dennoch variiert natürlich der individuelle Charakter der Gruppenräume: In jedem hängen andere Bastelarbeiten an den Wänden, wird das zweigeschossige «Spielhaus» – ein Riesenmöbel aus Holz – etwas anders bespielt. Und wo bei den einen gerade ein Stuhlkreis aufgebaut ist, wird bei den anderen ein Geburtstagstisch dekoriert.
Konstruktiver Aufbau
Das Fundament des Kindergartens besteht aus einer Flachfundation in Stahlbeton mit Teilunterkellerung und umlaufendem Streifenfundament auf Frosttiefe. Darüber erhebt sich ab dem Erdgeschoss ein Tragwerk aus Holz. Die Aussenwände bestehen hierbei aus einem Holzrahmenbau: Die Rahmenständer (8/24 cm) sind mit einer Kerndämmung (24 cm, Flumroc) versehen und innenseitig mit OSB-Platten ausgesteift, die wiederum mit einer Holzverschalung in Weisstanne beplankt sind. An die Aussenseiten der Wände sind Weichfaserplatten und eine hinterlüftete Nut-Kamm-Holzschalung (heimische Lärche) als Fassadenverkleidung angebracht. Die Innenwände bestehen ebenfalls aus Rahmenständern (6/20 cm), sind allerdings mit einer Hohlraumdämmung (2–20 cm) kombiniert und beidseitig mit OSB-Platten beplankt. Die Sichtfläche ist aus transparent lackiertem Weisstannentäfer. Der Obergeschossboden beziehungsweise die Zwischengeschossdecke besteht aus vorfabrizierten Hohlkastenelementen mit Kiesschüttung (7 cm), Wärmedämmung (2 cm Steinwolle), Trittschalldämmung (3 cm Mineralfaserwolle) und einem Unterlagsboden (7 cm). Dieser wurde in den öffentlich zugänglichen Räumen und Nassbereichen sichtbar belassen und ist geschliffen. In den Gruppenräumen wurde der Unterlagsboden mit Linoleum belegt. Beim Walmdach mit zentralem Dachhut handelt es sich um ein konventionelles Sparrendach – ein hinterlüftetes Kaltdach mit innenseitiger Nut-Kamm-Schalung. Genutzt wird das Dachgeschoss als Technik- und Abstellraum.
Logistisch gesehen kein Kinderspiel
Auf die Frage, was die grösste Herausforderung bei diesem Kindergarten-Bauprojekt gewesen sei, erklärt Peter Junginger: «In der Vorbereitungsphase war vor allem die Logistik herausfordernd. Unser Betrieb ist nicht sonderlich gross, und entsprechend ist auch unsere Werkstatt nicht riesig. Wir mussten immer schauen, wo wir unsere Baumaterialien deponieren konnten.» Diese wurden deshalb grösstenteils ausserhalb der Betriebsräumlichkeiten auf Pritschen zwischengelagert. Und auch auf der Baustelle selbst war wenig Platz, zumal der benachbarte Schulbetrieb auch während der Bauphase weiterlief. «Zum richtigen Zeitpunkt alles am richtigen Ort zu haben, war nicht ganz einfach», ergänzt der Seniorchef Junginger. Aber mit entsprechend sorgfältiger Planung und einem eingespielten Team vor Ort konnte das Bauprojekt planmässig fertiggestellt werden. Im Sommer 2024 wurde der Vierfachkindergarten an die Gemeinde Flums übergeben. Apropos Übergabe: Im Januar 2026 wird Peter Junginger die Junginger Holzbau AG an die nächste Generation weitergeben – dann übernimmt sein 37-jähriger Sohn Patrick das 90-jährige Familienunternehmen.
junginger-holzbau.ch, hebholz.ch
JUNGINGER HOLZBAU AG
Gegründet wurde der Zimmereibetrieb – er wird inzwischen in dritter Generation geführt – 1935 von Johann Junginger. Sein Sohn René führte das Unternehmen bis 1995 weiter und übergab dieses dann wiederum an seinen Sohn Peter Junginger, der den Familienbetrieb bis heute leitet. Peter Junginger ist 1962 in Walenstadt geboren, wo sich seit jeher auch der Firmensitz befindet. Nach seiner Zimmermannslehre bei seinem Vater bildete er sich an der Holzfachschule in Biel weiter. Die Schwerpunkte des Zimmereibetriebs liegen zur einen Hälfte bei Umbauten und Sanierungen, zur anderen Hälfte bei Elementholzbau, Fassaden und Dämmungen. Die nächste Generation des Betriebs steht nun bereits in den Startlöchern:
Patrick Junginger (*1989), gelernter Zimmermann und einer der beiden Söhne von Peter Junginger, wird im Januar 2026 die Junginger Holzbau AG übernehmen. junginger-holzbau.ch
Vierfachkindergarten in Flums
Projekt: Neubau Kindergarten, Flums (SG)
Bauherrschaft: Gemeinde Flums
Fertigstellung (Inbetriebnahme): August 2024
Architektur: Eberle & Freuler Architekten GmbH, Flums
Holzbauingenieur: Liesch Bauingenieure AG, Chur (Projektleitung: Michael Inauen)
Holzbau (Arge): Junginger Holzbau AG, Walenstadt (SG); HebHolz AG, Flums
Konstruktion/Tragwerk: Aussenwände Rahmenbau, Ständerwandelemente, vorfabrizierte Decken (Hohlkastenelemente)
Holzart (Konstruktionsholz): Fichte/Tanne, BSH, DUO, Kerto Q
Holzart (Fassade): Schweizer Lärche
Holzart (Innenausbau): Weisstannentäfer, transparent lackiert
Bruttogeschossfläche (EG und OG): 880 m2
Gebäudevolumen (EG und OG): 3935 m3
Gesamtkosten: CHF 4,98 Mio. (davon Zimmermannsarbeiten: CHF 760 000)







