Holzbau Schweiz Architektur

Bauen und leben mit Holz – Das Fachmagazin von Holzbau Schweiz

Holzbau Schweiz Magazin

Das Mitglieder- und Verbandsmagazin von Holzbau Schweiz

02/2025 Das Bankgeheimnis

BAUEN

Funktional gewachsen

Die S. Müller Holzbau AG tritt in eine neue Ära ein und vereint alle Abteilungen an einem Ort. Das Gebäudekonglomerat aus neuen und bestehenden Kuben und Aussenflächen bietet Platz für die rund 130 Mitarbeitenden, eine 100 Meter lange Produktionsstrasse und ein nachhaltiges Energiesystem.


Text Sue Lüthi Fotos und Pläne S. Müller Holzbau AG

 

In 17 Jahren hat Stefan Müller so einiges auf die Beine gestellt. Der gelernte Zimmermann und umtriebige Holzbautechniker gründete 2008 die S. Müller Holzbau GmbH und startete mit 15 Mitarbeitenden sein Unternehmen. Er übernahm eine Zimmerei und kaufte die Liegenschaft an der Sirnacherstrasse in Wil (SG). Müller entwickelte seinen Betrieb schnell weiter, gründete die VierD AG für Eventbauten und eröffnete eine Architekturabteilung. Mit dem Erfolg kam die Herausforderung: Die Räume stiessen an ihre Grenzen. 


In den vergangenen zwei Jahren realisierte Stefan Müller auf seinem Gelände ein Gebäude, das alle Bereiche und Mitarbeitende unter einem Dach vereint. Und was für ein Dach! Der Neubau ist keine simple Kiste, sondern ein aus der Funktion entstandenes Konglomerat kubischer Formen. Die neue Holzbearbeitungshalle bietet Raum für moderne Prozesse und steigert die Leistungsfähigkeit des Unternehmens. Dank kurzer Wege und gebündelter Kompetenzen vor Ort kann der Betrieb noch schneller und koordinierter arbeiten. Zudem bot der bestehende Standort eine gute Erschliessung und Erreichbarkeit für Mitarbeitende, Lieferanten sowie Kunden. 


Funktion im Vordergrund
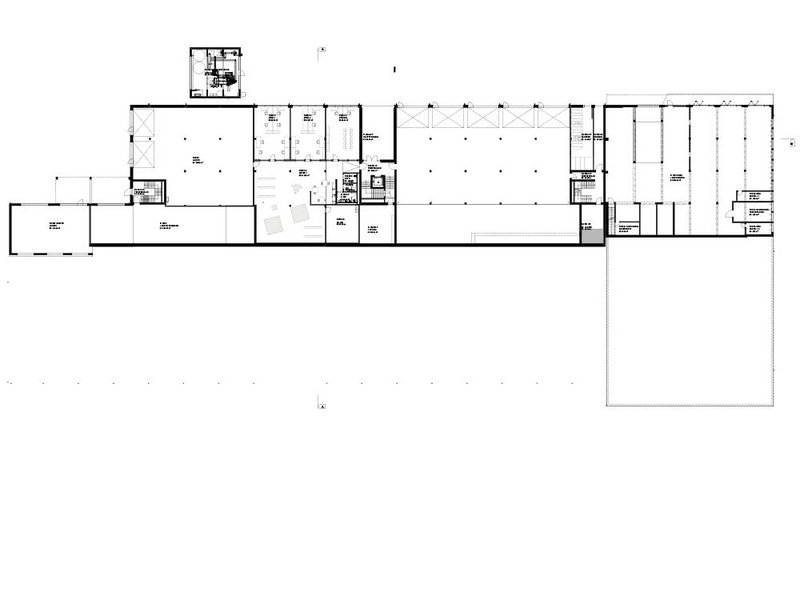
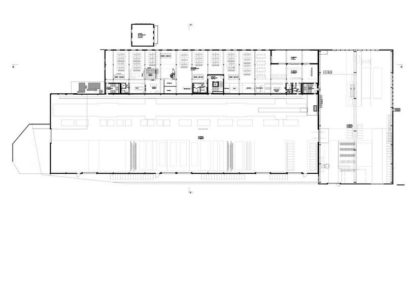
Das Architekturkonzept folgt konsequent dem Prinzip «Form follows function». Jedes Detail hat einen Zweck, der zugleich das Erscheinungsbild prägt. Die Dachneigung wurde durch die Dimensionierung der Binderkonstruktion definiert, die sowohl ästhetische als auch statische und strukturelle Aspekte verknüpft. Die gewählte Gebäudehöhe orientiert sich an der erforderlichen Mindesthöhe für den Hallenkran, was den Arbeitsprozess in der Produktion optimal unterstützt. Zwei markante Dachgauben lockern die langgezogene Dachfläche auf und erfüllen zugleich eine wichtige sicherheitstechnische Voraussetzung: Sie dienen im Brandfall der Entrauchung und bringen zusätzliches Tageslicht in die grosse Halle. 18 Fachwerkbinder sorgen für eine stabile, aber filigrane Tragstruktur. Die Binder liegen im Achsmass von 6,29 Metern nebeneinander und überspannen die Breite von fast 33 Metern. Die Verbindung der Holzelemente erfolgte unter anderem mit Stegplatten und Passbolzen. 


Die Produktionshalle erhielt ein Dach mit Koppelpfetten und Sandwichplatten, das sowohl Witterungsschutz als auch eine effiziente Dämmung bietet. Die Neigungen von 10 und 60 Grad sind nicht nur optimal für die Entwässerung, sondern verleihen dem Gebäude auch eine dynamische Optik. Das Herzstück in der Halle ist die 100 Meter lange Produktionsanlage mit CNC-Technologie. Zudem hat das Unternehmen gemeinsam mit der Technowood AG und der Isofloc AG ein vollautomatisches Dämmlager und ein Dämmportal entwickelt. Mit diesen Anlagen können noch mehr Arbeiten von der Baustelle ins Werk geholt werden, was Kosten- und Terminsicherheit bringt.
 

Verspielter Bürotrakt
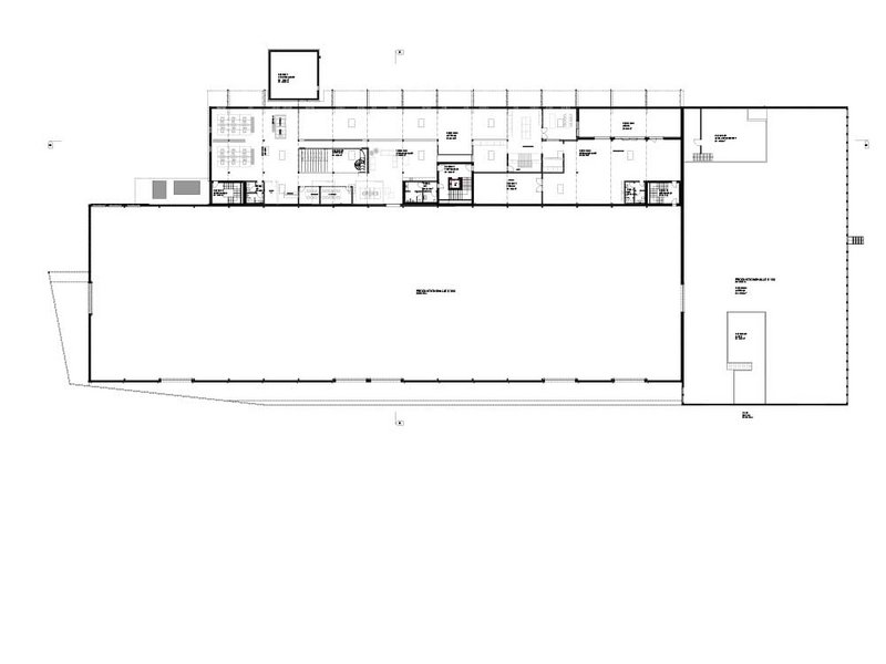
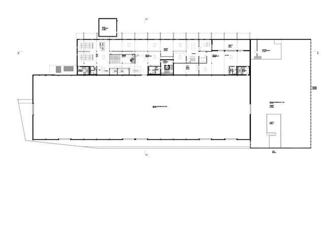
An die Produktionshalle mit stolzen Abmessungen von rund 107 auf 33 Metern lehnt sich der Bürotrakt. Diesen betreten die Mitarbeitenden durch das Untergeschoss, in dem sich fremdvermietete Büro- und Lagerräume befinden. Im Erd- und im Obergeschoss sind die grossräumigen Bürolandschaften mit Empfang, Sitzungsräumen und Pausenort eingerichtet. Die drei Treppenhäuser erfüllen zum einen die Vorschriften zur Entfluchtung und übernehmen eine wichtige Rolle im statischen Konzept. Zum anderen ermöglichen sie einen getrennten Zugang für Mitarbeitende und Besuchende. Besonders ins Auge fällt die Fensteranordnung, die einen Kontrast zur ruhigen, vertikalen Holzverkleidung darstellt. In Kombination mit den Dachfenstern entsteht im Inneren des Gebäudes eine Lichtstimmung, die das Wohlbefinden der Mitarbeitenden fördert und so zu einer höheren Qualität der Arbeit beitragen soll. Für das Innenausbaukonzept konnten die Mitarbeitenden ihre Ideen und Anregungen einbringen. Diese wurden in den Planungsprozess integriert, sodass die Räumlichkeiten optimal auf Prozessabläufe und die Bedürfnisse der Nutzer abgestimmt sind. Das Highlight im Büro ist sicher die Rutsche, die für eine Abkürzung vom Ober- ins Erdgeschoss einlädt. Der Skelettbau aus Holz ermöglicht flexible Grundrisse und eine offene Raumwirkung. Sichtbare Holzoberflächen schaffen eine warme, einladende Atmosphäre. Die Aussenwände bestehen aus gestrichenen OSB-Platten, während Einbauten mit gespachtelten MDF-Platten und die Trennwände zur Produktionshalle mit Fermacell verkleidet sind. Die Zellulosedämmung in den Wänden schluckt zudem den Schall. Im Bürotrakt sorgen Akustikplatten im Erdgeschoss und Akustikdeckensegel im Dachgeschoss für eine angenehme Geräuschkulisse. Für die Böden fiel die Wahl auf einen eingefärbten Anhydritboden.


Bau während laufenden Betriebs
Die Holzbauarbeiten waren ein Kraftakt –nicht nur wegen des Umfangs, sondern auch wegen der logistischen Herausforderungen. Der Bau der Produktionshalle dauerte 16 Monate, 19 Monate der des Bürotrakts. Rund 15 Mitarbeitende der S. Müller Holzbau AG waren in jeder Phase im Einsatz, von der Vorfertigung über die Aufrichte bis zum Innenausbau. Die grösste Herausforderung war dabei das Bauen parallel zum Tagesgeschäft: Der Betrieb lief weiter – trotz Platzmangel. «Wir hatten plötzlich nur noch ein Drittel der ursprünglichen Fläche zur Verfügung», erinnert sich Müller. Büros und Pausenräume mussten ausquartiert, Arbeitsabläufe neu organisiert werden. Die enge Bebauung und die begrenzte Fläche erforderten millimetergenaue Planung. Jeder Schritt musste sitzen, um Verzögerungen zu vermeiden. Die Anlieferung und die Lagerung von über 1000 Kubikmetern Holz (davon 500 m³ Fichte/Tanne und BSH für die Halle, 257 m³ für den Bürotrakt) verlangten eine durchdachte Logistik.
 

Optimiertes Energie-Management
Die S. Müller Holzbau AG setzt nicht nur auf Holz als Baumaterial, sondern auch auf eine klimafreundliche Energieversorgung. Mit einer Leistung von 927 Kilowatt-Peak deckt die Photovoltaikanlage auf dem Dach einen Grossteil des Strombedarfs. Das Restholz aus der Produktion geht in die Holzschnitzelheizung und produziert Wärme. Ein Energiemanagement-System der Solar Manager AG und der Loxone Electronics GmbH optimiert den Energieverbrauch und reduziert Kosten.
 

Klimaschutz ist kein Werbespruch
Ökologische Nachhaltigkeit steht für Stefan Müller nach eigenen Angaben beim Werken und Wirken im Vordergrund: «Mit dem Holzbau können wir einen schönen Teil zum Klimaschutz beitragen. Das ist kein Werbespruch, sondern eine persönliche Haltung, die sich durch alle unsere Tätigkeiten zieht. Verbautes Holz speichert CO2 auf lange Zeit. Zudem braucht das Bauen mit Holz weniger Energie als herkömmliche Bauweisen.» «Dieses Projekt zeigt, was mit Holz möglich ist: Stabilität, Ästhetik und Nachhaltigkeit – und das alles bei höchster Effizienz», resümiert Stefan Müller. Die neue Halle ist nicht nur ein Arbeitsort, sondern ein Lebensraum, der die Philosophie des Unternehmens widerspiegelt: Handwerkskunst, Innovation und Verantwortung. smue.ch, b-3.ch
 

S. Müller Holzbau AG

Entwickeln und bauen mit Holz ist die Leidenschaft des rund 130-köpfigen Teams der S. Müller Holzbau AG. Dazu gehören 21 Lernende. Das Unternehmen ist ein Partner für Anbauten, Neubauten, Aufstockungen und Umbauten, vom Einfamilienhaus bis zum Grossobjekt, von der Planung bis zur Fertigstellung. In Angeboten als Gesamtdienstleister sieht Stefan Müller (41) grosses Potenzial. Die S. Müller Holzbau AG hat 2025 den Artisana Award für betriebliche Gesundheitsförderung gewonnen und lässt sich alle drei Jahre als Holzbau-Plus-Betrieb zertifizieren. Stefan Müller lebt die Dynamik, die 
Offenheit für Neues und schafft so einen starken Teamzusammenhalt. 


Neubau Betriebshalle

Projekt: Neubau/Erweiterung Büro und Produktionshalle 
Fertigstellung: 2025
Bauherrschaft: S6 Immo AG, Wil (SG) 
Architektur: S. Müller Holzbau AG, Wil
Holzbauingenieur: B3, Romanshorn (TG)
Holzbauunternehmen: S. Müller Holzbau AG, Wil
Bruttogeschossfläche: 12 573 m2
Gebäudevolumen: 101 249 m3 
Baukosten Gebäude: CHF 15 Mio.