02/2025 Das Bankgeheimnis
BAUEN
Das Bankgeheimnis: Traditionsbewusstsein
In Lüterswil (SO) ist ein Bankgebäude entstanden, das so gar nicht in das Bild eines klassischen Finanzinstituts passt: Eingebettet in die ländliche Umgebung, zitiert es einen regionalen, bäuerlichen Architekturstil.
Text Archimedium Bonauer; Susanne Lieber Bilder Rob Lewis, GeHri AG Pläne SSM Architekten AG
Die hügelige Umgebung des Solothurner Bucheggbergs – im Dialekt «Buechibärg» genannt – ist eine bäuerlich geprägte Kulturlandschaft im Schweizer Mittelland mit hübschen Dörfern, bewaldeten Hügeln, saftigen Wiesen und farbenprächtigen Feldern. Zu dieser Bilderbuchidylle gehören auch die regionaltypischen Bauernhäuser mit (Krüppel-)walmdach, die dem neuen Hauptsitz der Spar- und Leihkasse Bucheggberg in Lüterswil architektonisch Pate standen.
Regional fest verankert
Die Spar- und Leihkasse Bucheggberg, bereits 1850 gegründet, ist eine Bank mit Privat- und Firmenkunden, die vorwiegend in der Region verwurzelt sind. Der bisherige Hauptsitz entsprach aber nicht mehr den heutigen Ansprüchen von Kundschaft und Mitarbeitenden: Laufwege, Komfort, Ästhetik, Kundenzone, Arbeitsplatzqualität und Haustechnik liessen zu wünschen übrig. Die vorhandenen Raumstrukturen konnten zudem nicht sinnvoll weiterentwickelt werden, da schon sämtliche Platzreserven aufgebraucht waren. Selbst die Parkplätze wurden knapp. So fiel der Entscheid für einen Neubau.
Das neue Gebäude – realisiert von einer Arbeitsgemeinschaft aus fünf Holzbaubetrieben der Region – verfügt jetzt über ein optimiertes Raumgefüge und ein weitaus besseres Kosten-Nutzen-Verhältnis als zuvor. Architektonisch und materiell angelehnt an die Bauernhäuser der Umgebung, bildet der neue Hauptstandort der Regionalbank ein markantes Zeichen am Dorfeingang. Der Entwurf für das Gebäude ist hierbei aus einem Wettbewerb hervorgegangen, den das Solothurner Büro SSM Architekten für sich entscheiden konnte.
Viereinhalb Jahre dauerte alleine die Planung für den Neubau. Wobei von Anfang an die Prämisse galt, sich an regionaltypischen Besonderheiten wie beispielsweise den besagten Bauernhäusern mit Krüppel-walmdach zu orientieren und diese neu zu interpretieren. Das langgestreckte Bankgebäude ist mit seinem Haupteingang auf der Längsseite direkt zur Kantonsstrasse hin ausgerichtet. Ein grosszügig angelegter Vorplatz und ein stilisierter Vorgarten mit metallgefassten Hochbeeten und einem Wasserbecken bilden dabei ebenfalls eine Referenz an die Bauernhöfe der Region.
Baumaterial aus der Umgebung
Im Grundsatz handelt es sich bei dem Gebäude um einen Holzskelettbau, wobei der Erschliessungskern sowie das Untergeschoss mit Technikräumen, Garderoben, Tresorraum und Einstellhalle in Sichtbeton ausgeführt sind. Die tragenden Stützen und Unterzüge – mit Knotenblechen und Passbolzen kraftschlüssig verbunden – bestehen aus Stabschichtholz in Buche (Fagus Suisse). Die Vollholzdecken wurden hingegen in Fichte ausgeführt, bei der Fassade kam Douglasie zum Einsatz.
Jeder der fünf regionalen Holzbaubetriebe, die bei dem Projekt involviert waren, trugen auf unterschiedliche Weise zum Gelingen des Bauprojekts bei: Die Rüti Holzbau AG fertigte die Wand- und Fassadenelemente, die Ernst Fink AG lieferte die Konstruktionselemente, die Mollet Holzbau AG die Dachelemente, und die Graber Holzbau + Sägerei AG sowie die Heinz Aebi Holzbau AG unterstützten das Vorhaben in personeller Hinsicht.
Bezüglich des verwendeten Holzes ist eines besonders hervorzuheben: Es wurde ausschliesslich Holz aus der Region genutzt – genauer gesagt 1200 Kubikmeter Mondholz, das entsprechend bei abnehmendem Mond geschlagen wurde und daher als besonders widerstandsfähig gilt. Geerntet wurde das Holz vom Forstbetrieb Bucheggberg, also direkt vor der Haustüre, was für kurze Transportwege sorgte und sich positiv auf die Bilanz der grauen Energie auswirkt. «Mit regionalem Holz zu arbeiten, bedeutete für uns, das Material früh organisieren und bestellen zu müssen, um entsprechende Trocknungszeiten einhalten zu können», erklärt dazu Jürg Affolter, Geschäftsführer und Inhaber der Rüti Holzbau AG, die federführend beim Holzbau war.
Grosszügige Innenraumgestaltung
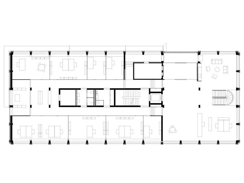
Das Raumgefüge bietet viele Sichtbezüge und schafft eine gelungene Verbindung zwischen Angestellten- und Kundenbereichen. Die an der Längsseite angeordneten Büros sind hierbei über einen separaten Personaleingang an einer der Stirnseiten des Gebäudes erreichbar. Die grosszügige Schalterhalle und ein grösserer Kundenbesprechungsraum sind auf der anderen Stirnseite verortet und somit Richtung Dorf ausgerichtet. Die Kundenhalle umfasst verschiedene Bereiche und ist auf drei Seiten raumhoch verglast, um für die Kundschaft die umliegende Landschaft einzufangen. Die persönliche Kundenbedienung erfolgt an den südlich platzierten Desks. Für vertrauliche Besprechungen stehen Beratungszimmer im Obergeschoss zur Verfügung, die über eine skulpturale Treppe mit brüstungshohen Wangen und über den Aufzug erreichbar sind.
Kundenanlässe und Events finden im multifunktional nutzbaren Dachgeschoss mit Terrasse statt, wo sich eine besonders beeindruckende Fernsicht und der Ausblick auf den Bucheggberg bieten. Belichtet wird das Dachgeschoss hierbei über zwölf Dachflächenfenster sowie ein zenitales Licht.
Sollte die Bank eines Tages Bedarf haben, sich zu vergrössern, stehen in diesem oberen Bereich noch ausreichend Ausbaureserven zur Verfügung. Räumliche Flexibilität war denn auch ein wichtiges Kriterium bei der Konzeption des Gebäudes. So wäre es durchaus denkbar, den Bau irgendwann einmal sogar komplett umzunutzen und daraus beispielsweise Wohnungen oder Reihenhäuser zu machen.
Gelochte Aussenhaut
Eine gestalterische Besonderheit des Gebäudes ist nicht zuletzt die Fassadengestaltung. Die Aussenhaut des Baus besteht aus einer hinterlüfteten Holzschalung (Douglasie) mit offenen Fugen, wobei Friese und Lisenen die Fassade gliedern. Ein regelmässiges Lochmuster bricht zusätzlich die Flächigkeit der einzelnen Fassadenfelder auf. Die Punktornamentik wird dabei durch drei übereinander liegende Löcher gebildet, die einen gestalterischen Brückenschlag zum alten Wappen von Buchegg mit drei Blumenrosetten bilden – einmal mehr eine liebevolle Referenz an die Region und ihre Menschen.
rueti-holzbau.ch, fink-holzbau.ch, mollet-holz.ch, graberholz.ch, aebiholzbau.ch
Rüti Holzbau AG
Das Unternehmen in Rüti bei Büren (BE) geht auf einen Zimmereibetrieb zurück, der einst 1975 übernommen wurde. Seit 2019 firmiert die Zimmerei als Rüti Holzbau AG, die in den Bereichen Holzelementbau, Fassadenbau und Innenausbau tätig ist und 13 Mitarbeitende beschäftigt. Geschäftsführer und Mitinhaber ist Jürg Affolter (siehe Cover). Der Betrieb versteht sich nicht nur als Bau-, sondern auch als Kulturbetrieb: Die Werkhalle wird regelmässig als Veranstaltungsort für Konzerte sowie Film- und Theatervorführungen genutzt. rueti-holzbau.ch
Bankgebäude
Projekt: Neubau Spar- und Leihkasse Bucheggberg, Lüterswil (SO)
Bauherrschaft: Spar- und Leihkasse Bucheggberg AG, Lüterswil
Fertigstellung: 2024
Architektur und Baumanagement: SSM Architekten AG, Solothurn und Grenchen (SO)
Verfahren: geladener Wettbewerb (1. Rang)
Holzbauingenieur: Holzing Maeder GmbH, Evilard (BE)
Holzbau (ARGE SLB): Rüti Holzbau AG, Rüti bei Büren (BE); Ernst Fink AG, Biezwil (SO); Mollet Holzbau AG, Unterramsern (SO); Graber Holzbau +
Sägerei AG, Messen (SO); Heinz Aebi Holzbau AG, Kyburg-Buchegg (SO)
Sägereien: Ingold Holz AG, Lüterkofen-Ichertswil (SO); Sagibach Holz AG, Schnottwil (SO)
Konstruktion: Skelettbau mit Vollholzdecken, hinterlüftete Fassade
Holzarten: Buche (Konstruktion: Stabschichtholz, Fagus Suisse), Tanne/Fichte (Vollholzdecken), Douglasie (Fassade)
Geschossfläche (SIA 416): 3176 m2







